architect

(Re)Office

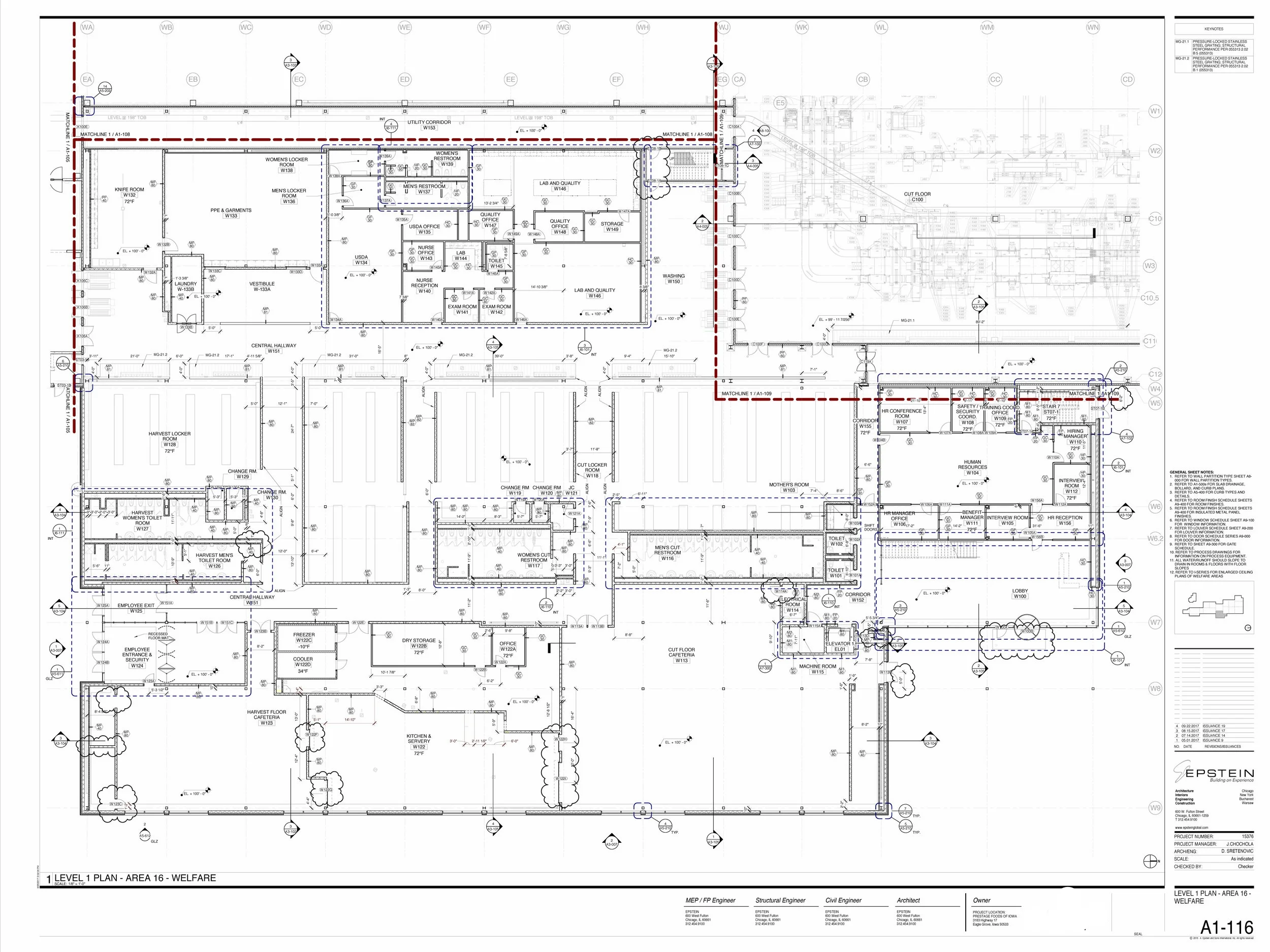
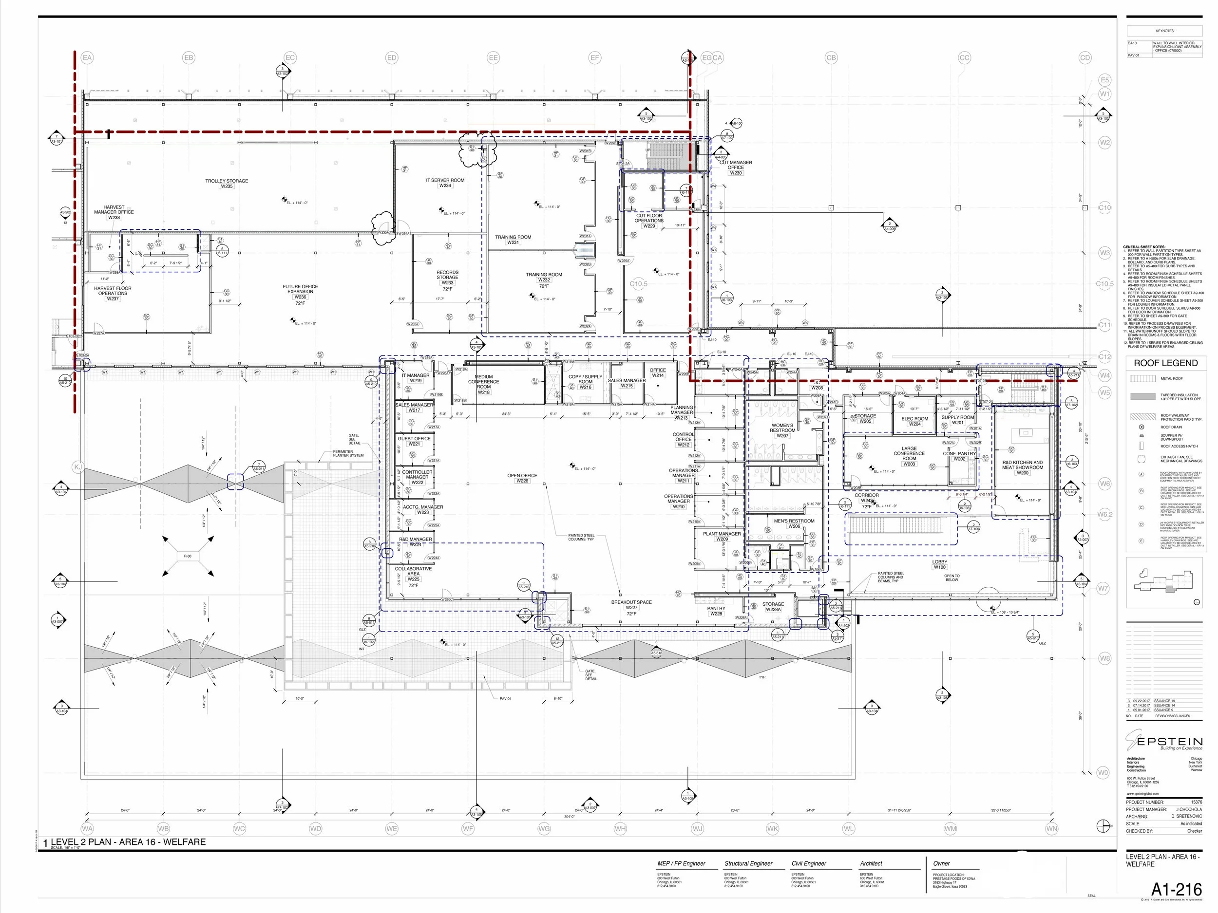
Every factory needs employees to make it run, which means every factory needs to consider the welfare of the employees.

Between 2016 and 2018 I worked to (re)design the 90,000 square feet welfare office for a 600,000 square foot pork industrial plant, currently under construction in Iowa.

  ̌